Fantastische Lage
In diesem projektierten Neubau entstehen 4 Wohnungen mit Größen zwischen 60 und 90 m² Wohnfläche.
Herzlich willkommen in Brotdorf, dem nach der Kernstadt größten Stadtteil von Merzig. Wir freuen uns, Ihnen ein fantastisch gelegenes Mehrfamilienhaus mitten in einem ruhigen Wohngebiet am Ortsrand anbieten zu dürfen.
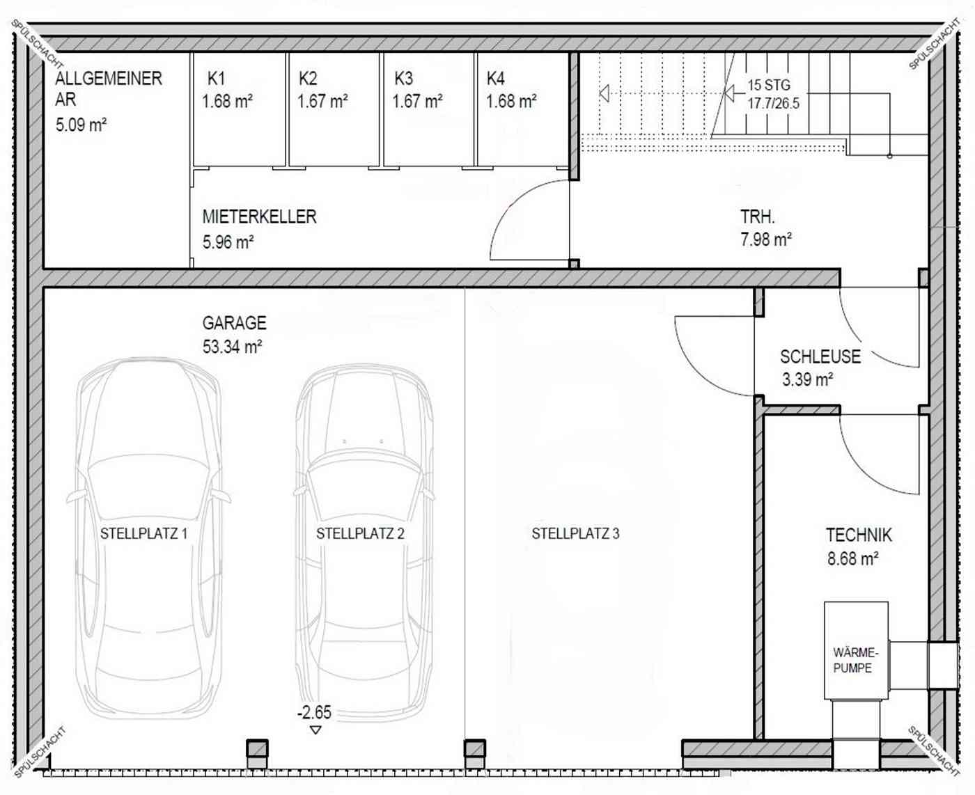
In diesem projektierten Neubau entstehen 4 Wohnungen mit Größen zwischen 60 und 90 m² Wohnfläche. Das Gebäude verfügt über 2 Wohnetagen und ein Kellergeschoss mit Tiefgarage.
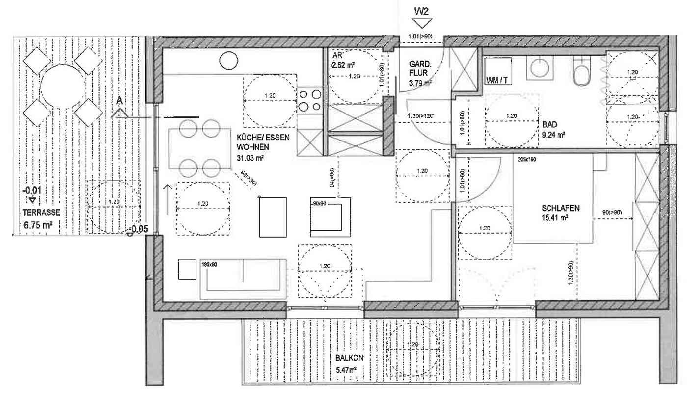
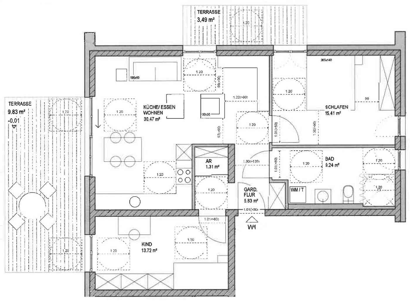
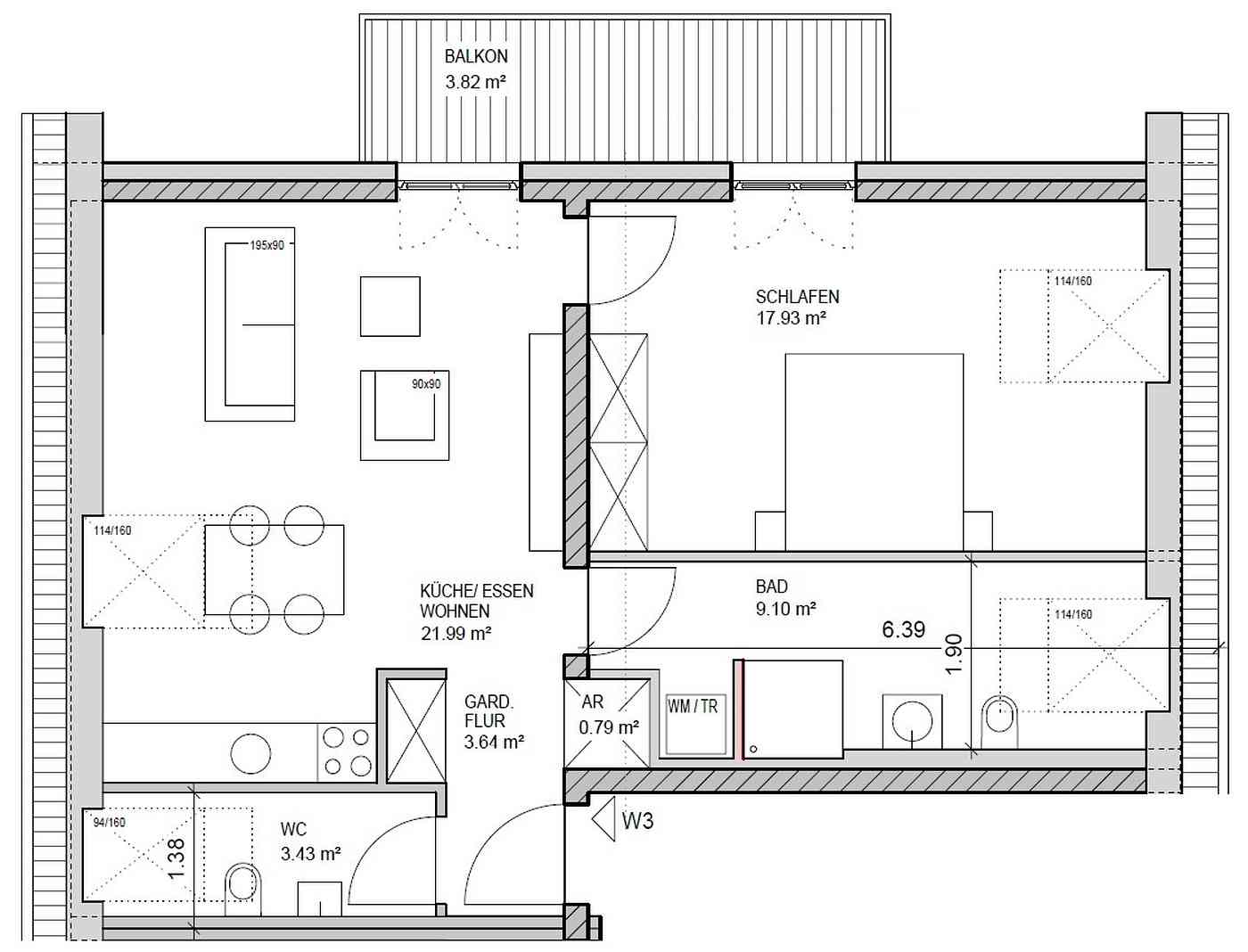
Die einzelnen Wohnungen verfügen über folgende Aufteilung:
- große Wohn- und Esszimmer
- offene Küchen
- ein bzw. zwei separate Schlafzimmer
- helle Tageslichtbäder
- praktische Abstellräume
- Terrassen bzw. Balkone
- teilweise mit Gäste-WC
Zur jeder Wohnung gehört ein zusätzlicher Abstellraum im Untergeschoss des Hauses. Auf dieser Etage befinden sich weitere gemeinschaftlich zu nutzende Räume (Hausanschlussraum, Heizungskeller, Abstellraum) und die Tiefgarage. Weitere KFZ-Stellplätze stehen den Bewohnern im Außenbereiche zur Verfügung.
Bereits die Basis-Ausstattung liegt mit großformatigen Fliesen, Parkettboden und Raffstores über dem Standard für vergleichbare Objekte.
Im aktuellen Planungsstadium können Sie sowohl an der Raumaufteilung als auch bei der Ausstattung der Wohnungen mitwirken.
Der Verkauf des Objektes erfolgt im Ganzen und als einzelne Eigentumswohnungen. Die entsprechenden Kaufpreise starten bei 296.600 €.
Bei Fragen zum Objekt bzw. zur Vereinbarung eines persönlichen Beratungsgesprächs können Sie sich jederzeit gerne an uns wenden. Unsere Immobilienberater freuen sich auf Ihre Anfrage.
Info-Line 0681 / 383-2323
Selbstverständlich stehen wir Ihnen auch gerne bei der Finanzierung Ihrer Immobilie zur Seite.
Das Gebäude befindet sich in der Klinkerstraße im Merziger Ortsteil Brotdorf.
Geschäfte zur Nahversorgung, Ärzte, eine Apotheke und ein Kindergarten befinden sich im Ortskern bzw. in unmittelbarer Nähe (Rewe-Supermarkt).
Die nur wenige Minuten entfernte Kreisstadt Merzig verfügt über eine hervorragende Infrastruktur mit umfangreichen Einkaufsmöglichkeiten, Behörden, Kindergärten sowie Grund- und weiterführende Schulen.
Eine vollumfängliche medizinische Versorgung sichert das Krankenhaus mit dem umgebenden Gesundheitscampus. Kulturelle Veranstaltungen finden in der Stadthalle und im Zeltpalast in den Saarwiesen statt.
Merzig liegt verkehrsgünstig direkt an der Autobahn A8 mit guter Autobahnanbindung nach Saarlouis, Saarbrücken und Luxemburg. Auch Trier in Rheinland-Pfalz und Metz in Frankreich sind nur jeweils knapp 50 Kilometer entfernt.
Ein gut ausgebautes Wanderwegenetz mit rund 300 km Gesamtlänge lädt zum aktiven „Natur Erleben“ ein.
| Bezeichnung | Lage, Beschreibung | Fläche | Kaufpreis € | Status |
| W-1 | EG, 3 ZKB, 2 Terrassen | 89,30 m² | 436.600 | verfügbar |
| W-2 | EG, 2 ZKB, Terrasse, Balkon | 74,31 m² | 363.600 | verfügbar |
| W-3 | OG, 2 ZKB, GWC, Balkon | 60,70 m² | 296.600 | verfügbar |
| W-4 | OG, 2 ZKB, GWC, Balkon | 66,98 m² | 327.600 | verfügbar |
| G-1 | KG, Garage mit AST | – | 27.800 | verfügbar |
| G-2 | KG, Garage mit AST | – | 27.800 | verfügbar |
| G-3 | KG, Garage mit AST | – | 27.800 | verfügbar |
| AST-1 | Außen, Stellplatz | – | 9.000 | verfügbar |
| AST-2 | Außen, Stellplatz | – | 9.000 | verfügbar |